Unsere Häuser
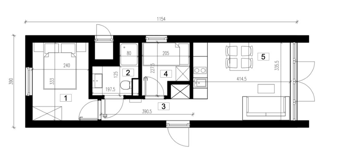
Einzelmodulhäuser

So könnte eine Beispielgrundriss für Einzelmodulhäuser aussehen.
geeignet für folgende Konzepte:
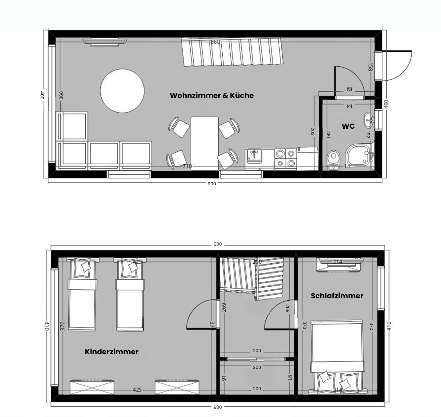
Doppelmodulhäuser
geeignet für folgende Konzepte:

Hier ein Beispielgrundriss für Doppelmodulhäuser.
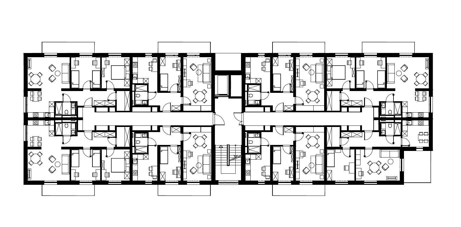
Skalierbare Gebäude

Hier ein Beispielgrundriss für skalierbare Gebäude, gerne passen wir den Grundriss individuell auf dein Vorhaben an.